PRODUITS
DESCRIPTION DU PRODUIT
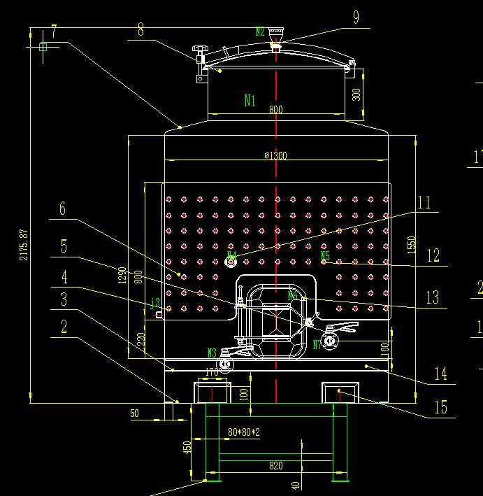
Ce type de conteneur est conçu avec des trous pour chariot élévateur ou des structures de cadre, facilitant l'insertion directe des fourches du chariot pour la manipulation, simplifiant ainsi le processus de chargement et de déchargement.

1. Poches intégrées pour chariot élévateur (caractéristique non négociable)
C'est la caractéristique déterminante. Chaque réservoir à vin pour chariot élévateur possède des poches renforcées en acier robuste (généralement 2 à 4 poches, placées symétriquement sur la base ou les parois inférieures du réservoir). Ces poches sont conçues pour supporter le poids total du réservoir plus le vin à l'intérieur (un réservoir de 500 gallons pleins peut peser plus de 4 500 lbs !). Crucialement, les poches sont encastrées ou affleurantes—elles ne dépassent pas, évitant ainsi que le réservoir ne s'accroche aux étagères, tuyaux ou autres équipements lors des déplacements. Nous n'utilisons jamais de supports externes ici—ils cassent trop facilement sous de lourdes charges.
2. Conception empilable (pour un stockage économe en espace)
La plupart des réservoirs à vin pour chariots élévateurs sont empilables lorsqu'ils sont vides (et parfois partiellement pleins, avec des limites de poids strictes). Le haut du réservoir a une bordure renforcée qui s'adapte parfaitement à la base d'un autre réservoir, permettant d'empiler 2 à 3 unités avec un chariot élévateur. C'est un changement majeur pour les petites et moyennes caves—vous n'avez pas besoin d'un immense entrepôt pour stocker les réservoirs vides hors saison. Conseil pro : vérifiez toujours la capacité d'empilement du fabricant—ne jamais empiler des réservoirs pleins sauf s'ils sont explicitement conçus pour cela (la plupart ne le sont pas, pour des raisons de sécurité).
3. Construction durable et légère (équilibrée pour la manipulation par chariot élévateur)
Ces réservoirs sont presque toujours fabriqués en acier inoxydable 304 ou 316 (qualité alimentaire, résistant à la corrosion, parfait pour le vin acide). Mais l'épaisseur de l'acier est soigneusement équilibrée : assez épaisse pour contenir le vin sans se déformer, assez fine pour être déplacée par un chariot élévateur standard (pas besoin d'un chariot industriel lourd). La base est également renforcée par un cadre en acier solide—cela empêche le réservoir de se plier ou de se fissurer lorsqu'il est soulevé par un chariot, même lorsqu'il est plein.
4. Options de taille portables (adaptées à la manœuvrabilité du chariot élévateur)
Les réservoirs à vin pour chariots élévateurs sont disponibles en tailles modulaires et maniables—généralement de 50 gallons (tests de petits lots) jusqu'à 1 000 gallons (production en vrac de petits lots). Ils ne sont jamais plus grands, car des réservoirs plus larges/longs seraient trop difficiles à déplacer en toute sécurité dans une cave (où les allées sont souvent étroites, avec des plafonds bas et des virages serrés). Cette portabilité permet de déplacer le réservoir directement du pressoir à la zone de fermentation, puis à la salle de vieillissement, et enfin à la ligne d'embouteillage—pas besoin de pomper le vin plusieurs fois entre des réservoirs fixes (ce qui réduit le risque d'oxydation !).
5. Points d'accès adaptés aux chariots élévateurs (pour faciliter les tâches de vinification)
Les vannes, ports d'échantillonnage et trappes d'accès sont tous placés à une hauteur facilement accessible lorsque le réservoir est déplacé par un chariot élévateur. Par exemple, la vanne de vidange est généralement sur le côté inférieur (mais pas trop bas pour éviter de toucher les fourches du chariot), et le port d'échantillonnage est à hauteur de poitrine—vous n'avez donc pas besoin d'échelle ou de descendre le réservoir pour prélever un échantillon de vin. Certains modèles ont même un indicateur de hauteur réglable par chariot élévateur—l'opérateur peut ainsi soulever le réservoir à la hauteur exacte nécessaire pour connecter les tuyaux ou les lignes d'embouteillage, sans supports supplémentaires.
6. Extérieurs résistants aux chocs (pour la manipulation en entrepôt)
Soyons réalistes—les chariots élévateurs ne sont pas toujours parfaits. Ces réservoirs ont des protections d'angle renforcées et des finitions anti-rayures sur l'acier. Les poches pour chariot sont également doublées de caoutchouc ou de plastique épais pour éviter que les fourches ne rayent le réservoir (les rayures peuvent entraîner une corrosion à long terme, ce qui ruinerait le vin). Cela les rend bien plus durables que les réservoirs à vin standards non conçus pour les chariots, qui s'endommageraient facilement si vous tentiez de les déplacer avec des équipements lourds.
7. Compatibilité avec les accessoires standards de cave (pas besoin d'outils spéciaux)
Les réservoirs à vin pour chariots élévateurs fonctionnent avec tous les équipements standards que vous possédez déjà : vestes de refroidissement, éléments chauffants, bras de soutirage et bouchons. La seule différence est que vous pouvez déplacer le réservoir avec tous ces accessoires attachés (tant qu'ils sont sécurisés) à l'aide d'un chariot élévateur. Cela économise beaucoup de temps—vous n'avez pas à déconnecter et reconnecter les tuyaux à chaque déplacement. Par exemple, vous pouvez fermenter le vin dans le réservoir, attacher une veste de refroidissement, le déplacer vers la chambre froide avec un chariot, et le laisser vieillir—sans toucher au vin à l'intérieur.
Obtenir un devis
Emballage et expédition
Produits recommandés